热搜关键词: 定制IC测试座 IC老化板 模块测试座 SSD-flash存储






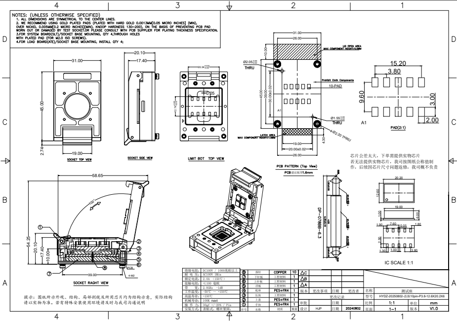
晶振测试座参数:
支持频率:≤1Ghz
温度范围:-40℃~155℃
操作力压:30g每pin,PIN越多需要压力越大
额定电流:单PIN 1A max
接触电阻:≤50毫欧
绝缘电阻:DC500V 1000兆欧以上
机械寿命:>1.5万次
测试座本体材料:PEI+PEEK
测试座结构:翻盖式
贴片晶振以及微小芯片测试座:
贴片品振是一种封装形式为贴片的品振器件。它通常采用表面贴装技术(SMT)封装,具有小尺寸、轻量、易于安装等特点。需要注意的是,测试时需要确保测试环境的稳定性,避免干扰信号对测试结果的影响。另外,如果晶振无法正常工作,可能是晶振本身故障或者外部电路问题,可以进一步检查和排除故障。
IC测试座
晶振测试socket
晶振测试夹具
晶振测试座
10pin晶振测试座
5032晶振测试座
咨询热线
0755-83587595